
點擊次數:1271更新時間:2022-11-17 10:25:28 【打印】
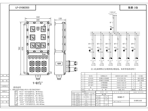
這是一張完整的防爆配電箱圖紙,它是由1個總開關和6分開關組成,分開關都帶防爆插銷,是一臺帶檢修電源的防爆箱,一開始由客戶發來線路圖,由我們安凌防爆工程師來報價,價格合適。然后由工程師設計外形圖,例如上面這一臺,它的外形尺寸是300*700*150,是由上下2個殼體組成。上面部分采用隔爆腔體組成,下面部分采用增安腔體組成。區別就是一個裝開關電器,一個用來接線。下面是接線進出線孔,這個一般由用戶來確認,孔的大小要和鋼管或者防爆軟管相對應。 這臺防爆配電箱的防爆等級是ExdeIIBT4,也可以定制更高等級的是ExdeIICT4。定做防爆箱時要向廠家提出要求:防護等級IP54屬于室內安裝,如果是室外安裝等級是IP65,還有進出線方式,元器件品牌型號(這臺用的是正泰元件),使用環境,安裝方式等等。都能從圖紙上看到。所以在生產之前工程師必須畫一張圖紙給客戶確認。 |